ChatsApp

Descripción

Comprá hoy VENTURA UPTOWN – PISO 5 EN VENTA a un precio de 2024!!!
José Enrique Rodó 2167 esq. Dr. Joaquín Requena
Entrega estimada: marzo 2027 – En pozo
Oportunidad en pleno Cordón Soho, una zona con gran dinamismo, excelente conectividad y alta demanda de alquiler por su cercanía a universidades y servicios.
Estamos comercializando una unidad en piso 5 a USD 157.000 por todo concepto. Se trata de una reventa de un inversor que ingresó en etapa temprana del proyecto, lo que permite acceder hoy a un valor inferior al precio de lista vigente de la desarrolladora. Una oportunidad concreta dentro del edificio.
Forma de pago:
Entrega inicial de USD 97.000 y 60.000 dólares de saldo aproximadamente que sería USD 35.000aprox financiado en cuotas mensuales de USD 2.000 durante la obra USD 25.000 al momento de la entrega.
La unidad mira al contrafrente lo cual es mas tranquilo y luminoso, ofrece un diseño moderno y muy buena luminosidad por mirar al norte, con amplia terraza que aporta verdadera expansión al espacio interior. Cuenta con excelente calidad constructiva, cerramientos de alta prestación, garantizando confort térmico y acústico.
El edificio contará con 2 barbacoas totalmente equipadas con terrazas en rooftop, gimnasio con terraza, cowork con expansión exterior, laundry, lockers, Pet Beauty, parrillero exterior, bicicletero y parking con opción de cargadores eléctricos. Seguridad con cámaras en espacios comunes y acceso mediante puerta biométrica.
Ideal tanto para vivienda como para inversión en una zona con sólida proyección de valorización. Pocas veces se dan estas oportunidades.

Características de la propiedad

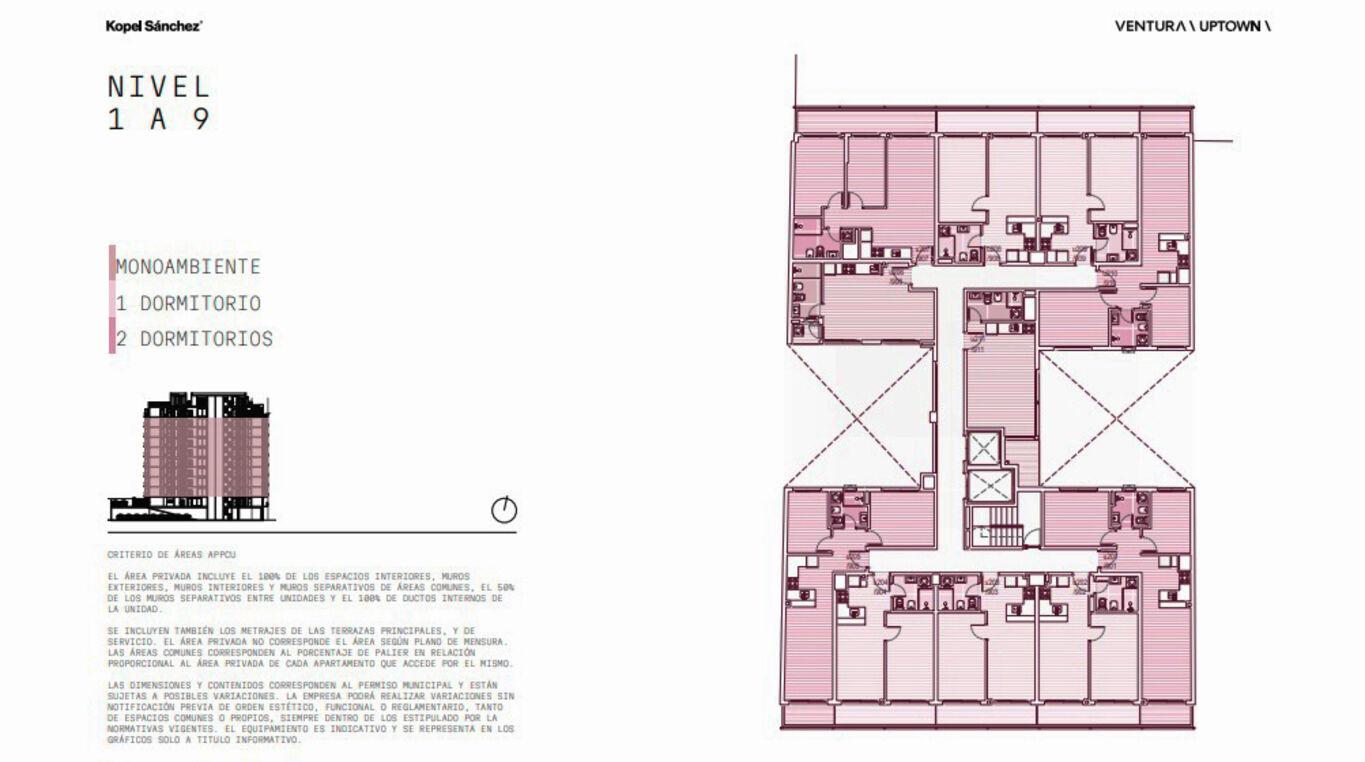
  • Nº de UnidadUnidad: 509
  • Habitaciones1 Habitación
  • BañosBaños: 1
  • SuperficieSuperficie: 478 m²
  • Superficie ConstruidaSuperficie Construida: 36 m²
  • Superficie BalconesSuperficie Balcones: 63m²
  • GarageGarage: 0
  • Gastos ComunesGastos Comunes: $U 111
  • ParrilleroParrillero
  • CalefacciónCalefacción:
  • OrientaciónOrientación: Norte
  • DisposiciónDisposición: Contrafrente
  • Propiedad HorizontalPropiedad Horizontal
  • PisoPiso: 5
  • Aptos por pisoAptos por piso: 9
  • Pisos EdificioPisos Edificio: 11
  • Año de ConstrucciónAño de Construcción: 2027
  • AscensorAscensor
  • LavaderoLavadero
  • Acepta MascotasAcepta Mascotas
  • Barbacoa: Si
  • Gastos comunes inquilino: $U 111

Si estás buscando vender, comprar o alquilar una propiedad en Uruguay, en Etcheverry Inmobiliaria encontrarás un asesoramiento integral y personalizado que hará la diferencia. Nos avalan más de 25 años de experiencia y el respaldo de trabajar junto @grupoguiaoficial.

Seguinos en redes sociales!